Elm Terrace, Westfield, Radstock Elm Terrace, Westfield, Radstock

Elm Terrace, Westfield, Radstock

3 bedroom Terraced House for sale

£275,000

  • 3 bedroom
  • 2 bathroom

Key Features

  • NO ONWARDS CHAIN
  • Extended Three Bed End Terrace
  • Parking
  • Modern Kitchen
  • Close To All Local Amenities
  • Tenure - Freehold
  • Energy Rating - D
  • Council Tax Band - B

Description

Barons are delighted to present this well-presented and spacious family home, ideally situated in the desirable area of Westfield. Conveniently located close to local amenities and well-served by frequent bus routes to nearby towns and villages, this property offers an excellent balance of comfort and practicality.

The ground floor features a generous open-plan layout, including a welcoming living room with a cosy log burner, a dining area, and a thoughtfully extended kitchen, all enhanced by elegant oak flooring throughout.

Upstairs, the property offers three well-proportioned bedrooms, including a master bedroom with built-in wardrobes and an en-suite shower room. Two further single bedrooms and a family bathroom complete the first floor accommodation.

Additional benefits include gas central heating, UPVC double glazing throughout, a good-sized detached enclosed rear garden with a lawn, decked seating area, and garden shed, as well as off-street parking.

Early viewing is highly recommended. To arrange your appointment, contact Barons today on 01761 411411

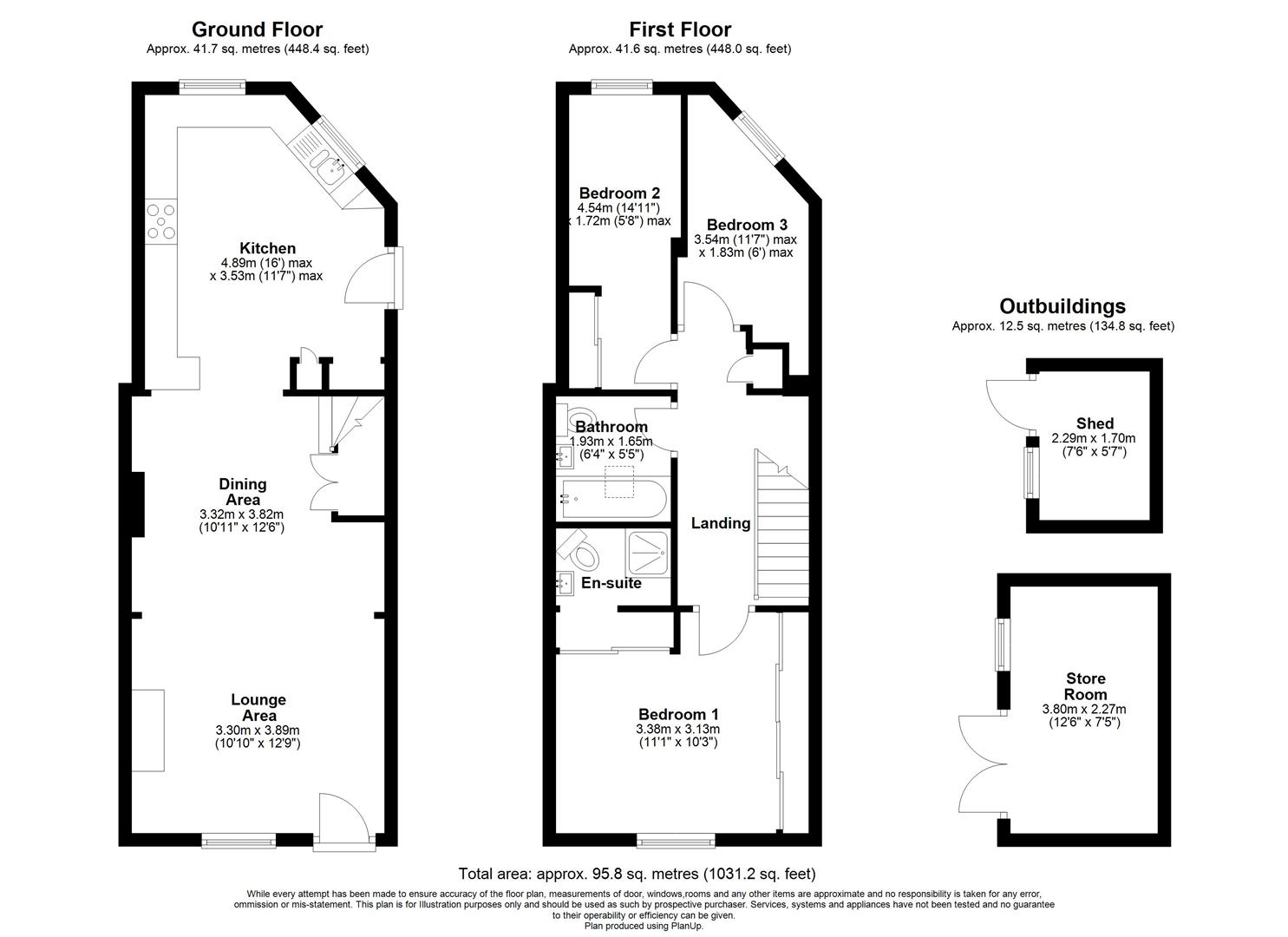
Kitchen (4.89 max x 3.53 max)

Lounge (3.30 x 3.89)

Dining Area (3.32 x 3.82)

Bedroom One (3.38 x 3.13)

Bedroom Two (4.54 x 1.72 max)

Bedroom Three (3.54 max x 1.83 max)

Bathroom (1.94 x 1.65)

Please Note

Utilities,
Heating: Gas central heating
Windows: UPVC double glazing throughout
Water & Sewerage: Mains connected
Electricity: Mains connected
Broadband: connected to Fibre Broadband (currently with virgin media)


Location


Floorplan

Floorplan

EPC

EPC for Elm Terrace, Westfield, Radstock

Video Tour


Similar Properties

Polden Walk, Midsomer Norton, Radstock
For Sale

Polden Walk, Midsomer Norton, Radstock

3 Bed Semi-detached house For Sale
£325,000
Steam Mills, Midsomer Norton, Radstock
For Sale

Steam Mills, Midsomer Norton, Radstock

3 Bed Cottage For Sale
£270,000
Fosseway, Westfield, Radstock
For Sale

Fosseway, Westfield, Radstock

3 Bed Terraced House For Sale
£290,000