Fosseway, Westfield, Radstock Fosseway, Westfield, Radstock

Fosseway, Westfield, Radstock

3 bedroom Terraced House Sold STC

£290,000

  • 3 bedroom
  • 1 bathroom

Key Features

  • Beautifully Presented Throughout
  • Garage and Parking
  • Three Bedrooms
  • Utility Room and Cloak Room
  • Close To Local Amenities
  • Tenure - Freehold
  • Energy Rating - D
  • Council Tax Band - B
  • NO ONWARDS CHAIN
  • Extended Family Home

Description

Charming Three-Bedroom Character Terrace with Parking For Two Vehicles & Larger Than Average Garage.

This well-presented terraced character cottage is ideally located on the edge of Midsomer Norton, offering generous accommodation and a lovely blend of period features and modern comfort.

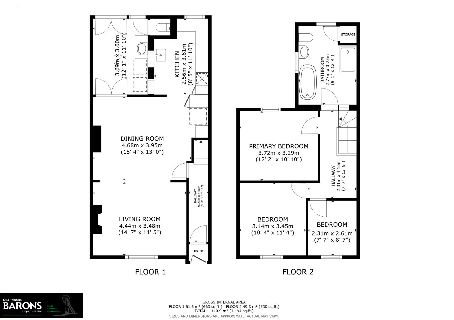
The ground floor comprises a spacious lounge/dining room complete with a feature open fireplace, creating a warm and inviting living space. The kitchen provides a range of fitted wall and base units, coordinated worktops, and space for essential appliances. A useful utility room with skylight offers additional storage, plumbing for a washing machine, and access to the the cloak room.

To the first floor, there are three well-proportioned bedrooms, including a master with built-in wardrobes and a well-appointed family bathroom complete with a separate bath and a shower cubicle.

Outside, the property boasts off-street parking, a garage with power and lighting, and a level rear garden laid to lawn with a decked area, perfect for relaxing or entertaining.

If you are seeking a spacious, beautifully presented home with character and excellent amenities, this property is a must-see.
Viewings highly recommended. Contact BARONS today on 01761 411411.

Kitchen (3.65 x 2.68)

Dining Room (4.40 x 3.44)

Lounge (4.45 x 3.43)

Utility (3.80 x 2.53)

WC

Bedroom One (3.34 x 2.7)

Bedroom Two (3.58 x 3.22)

Bedroom Three (2.67 x 2.18)

Bathroom (3.71 x 2.77)


Location


Floorplan

Floorplan

EPC

EPC for Fosseway, Westfield, Radstock

Video Tour


Similar Properties

Stanley Court, Midsomer Norton, Radstock
For Sale

Stanley Court, Midsomer Norton, Radstock

1 Bed House For Sale
£125,000
Polden Walk, Midsomer Norton, Radstock
For Sale

Polden Walk, Midsomer Norton, Radstock

3 Bed Semi-detached house For Sale
£325,000
Steam Mills, Midsomer Norton, Radstock
For Sale

Steam Mills, Midsomer Norton, Radstock

3 Bed Cottage For Sale
£270,000